LEBEN in BURKARDROTH
Maps
Kontakt
Wetter
Google Earth
Panorama
Menü
Maps
Kontakt
Wetter
Google Earth
Panorama
X
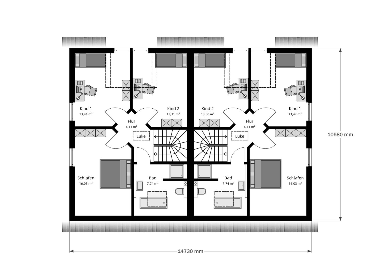
Pl-3-DHH
Normal
Previous
Next
Loading...
3-3
3-4
1-2
top_integ_2
DH_5_EG
DH_5_OG